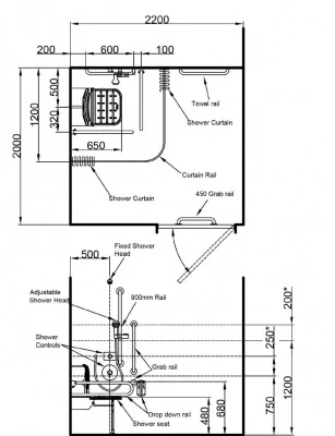
A complete ready to fit Doc ‘M’ Exposed Valve shower pack for all commercial public use toilet rooms – provides a safe accessible environment for all users
- Compliant, complete shower packs with shower valve, head, seat and grab rails
- Choice of high visibility Blue or White grab rails
- Exposed TMV3 thermostatic mixer shower with extended lever
- Stainless steel construction
A great value commercial Doc M shower pack
Pack Includes
- 1 x TMV3 thermostatic sequential shower kit
- 2 x 800mm lift and lock hinged rails
- 3 x 600mm grab rails
- 1 x 450mm grab rail
- 1 x 900mm polished slider rail
- 1 x Slider shower head bracket
- 1 x 1200mm x 1200mm shower curtain rail
- 2 x 1800mm x 2000mm weighted curtains
- 1 x Doc M shower seat with legs
- 1 x Robe hook







Reviews
There are no reviews yet.