A premium, complete and ready to fit Doc ‘M’ Exposed Valve shower pack for public use toilet rooms – provides a safe accessible environment for all users
- Compliant, complete shower packs with shower valve, head, seat and grab rails
- Satin finish stainless steel grab rails which hides finger print marks
- Exposed TMV3 thermostatic mixer shower with extended lever
- Stainless steel construction
- Also available with matt black or stainless steel polished or satin finish grab rails
A premium commercial Doc M Exposed Valve shower pack
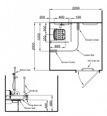
Pack Includes
- 1 x TMV3 thermostatic sequential shower kit
- 2 x 800mm single arm friction hinged rails
- 3 x 620mm straight grab rails
- 1 x 480mm straight grab rail
- 1 x 900mm Slider rail
- 1 x Slider bracket
- 1 x 1200mm x 1200mm shower rail
- 2 x 1800mm x 2000mm weighted curtains
- 1 x Slimline shower seat
- 1 x Robe hook
Please note seat needs to be positioned on a built out section of wall to achieve 659mm projection for Doc M






Reviews
There are no reviews yet.