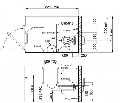
A wall hung ready to fit Doc ‘M’ pack for all commercial public use toilet rooms – provides a safe accessible environment for all users
- Concealed cistern and wall hung toilet designed for easier use by elderly and less abled users
- LABC and WRAS approved
- Toilet seat fitted with adjustable buffers and stainless steel hinge
- Grab rails also available in dark grey, grey, white, polished and satin
Choose from six different coloured grab rails
Pack Contents
- Wall hung WC pan
- Concealed Cistern
- Single Ring Seat
- 1 x Extended spatula cistern lever
- Wall Basin with two tap holes
- Basin Hangers
- Sequential Lever Mixer Tap
- Basin Waste
- 1 x 800mm Lift and Lock Hinged Support Rail
- 5 x 600mm Grab Rails
- 1 x padded back rest rail










Reviews
There are no reviews yet.